Can we build Solar Plant on metal roof ?
Our solar racking strucure can help you install solar panels on metal roof quickly.
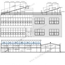
One of Korean clients require install PV modules on existed metal rooftop.
”
Hello,
This is Peter Cho who is working as Sales Director for A Korea Renewable Company,
and I’ve learned your esteemed company by the mail which you sent us as below.
We are one of the leading companies to establish Solar Power Plant in the domestic market in Korea.
Up to now we only use the structural components made in Korea but considering importing the components from outside.
Recently we are planning to build Solar Plant on the roof of our company building.
1. Panel Dimension
Refer to the attached file
2. Max Wind Speed and Max Snow Load
Basic Wind Speed: 28m/sec
Fixed Load : 0.75 KN/m2 (Solar System Load: 0.25 KN/m2)
3. Installation Angle
16 Degree
4. Recommendation
The joint between the existing structure and the photovoltaic structure should be secured at least 10KN in tension and 20KN in compression.
***.Roof material dimension attached
If we satisfied the product’s quality after mounting them on our roof, then will decide whether to use continuously the parts for our business.
Therefore could you kindly afford us following,
1. Price /CIF BUSAN KOREA
Roof mounting structure parts per 100KW Solar Plant establishment.
2. Delivery
3. M.O.Q
Thank you
Regards.
Peter
“
Dear Peter
Appreciated for your inquiry about our roof mounting systems.
As factory direct, I believe we can offer you good quality with competitive prices.
Our engineer just release design base on your rooftop mounting requirements.
Features of this Solar Plant on metal roof mounting system:
– Cut down daily electric cost by rooftop solar power generation;
– Utilizing existing place;
– Make our earth GREEN by clean / reliable / endliss SUN power.
Welcome to contact SPC solar for more information about solar power plant mounting on roof from www.SolarPartsComponents.com
“
















